INICIO
EMPRESA
SERVIÇOS
PRODUTOS
MEMORIAIS
OBRAS EXECUTADAS
CONTATO
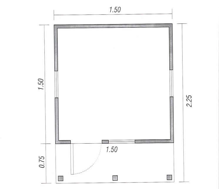
Modelo Andressa
Características
Escala:
Sem escala
Área total: 3.37m²