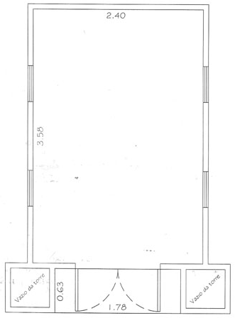
Capela

Características

Área Construida: 11.59m² Escala: 1:25